Client:
Arshad Khan
Location:
Feni
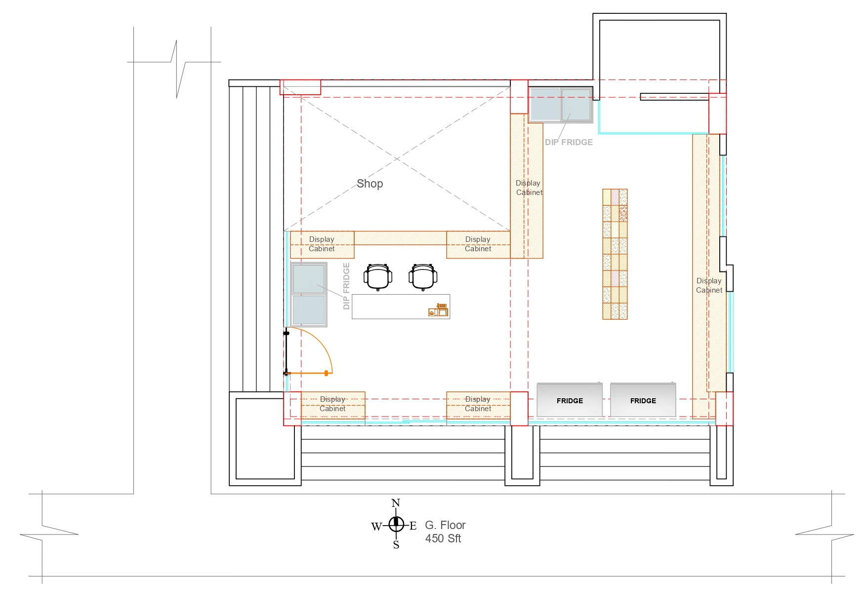
Project Area:
780 SQFT.
Project Description:
We delivered a comprehensive two-floor commercial interior design consultation for the Pustimate Store, optimizing for wellness and retail efficiency. The Ground Floor features a vibrant, customer-focused layout for an Organic Food Store, complete with natural finishes and fresh produce displays.
The First Floor is dedicated to a premium Skincare & Wellness Center, designed with a clean, modern aesthetic to enhance brand value. This project successfully integrated distinct retail concepts within a single, cohesive structure, showcasing our expertise in multi-functional retail interior architecture and commercial space planning.
Floor Planning






















