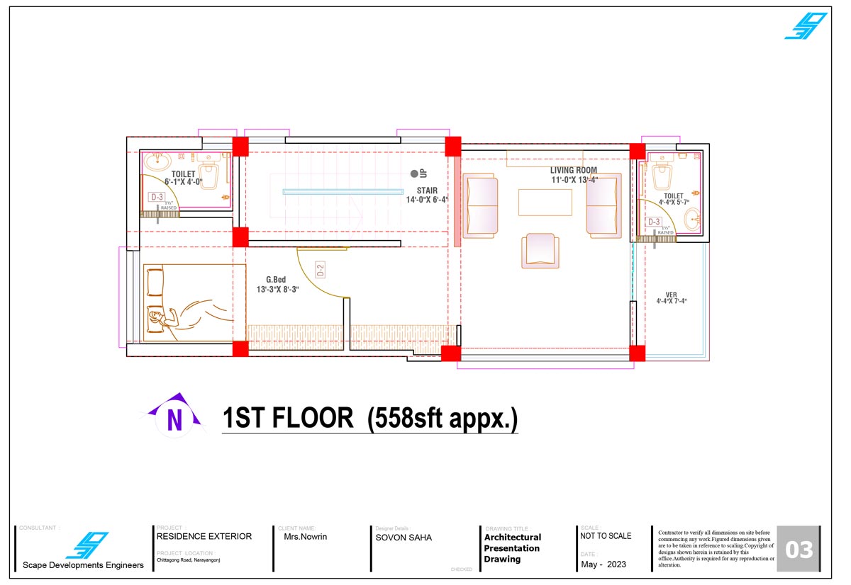
Client:
Mrs. Nowrin
Location:
Chittagong road, Shiddhirganj, Narayanganj.
Project Area:
558 square ft.
Building Area:
Project Description:
Our residential interior design consultancy involved a collaborative journey focused on transforming living spaces into personalized sanctuaries. Through close collaboration with clients, we crafted customized design concepts that balanced functionality and aesthetics. Meticulous attention was given to materials, finishes, and furnishings, resulting in spaces that enhance both visual appeal and practicality. Our consultancy prioritized seamless communication and transparency, ensuring that each project reflected the homeowners’ aspirations. The culmination was the creation of inviting, meaningful environments that celebrate individual identities and cater to both functional and emotional needs.











